Nastavitelné pouzdro pro tloušťku příčky 100 nebo 125 mm určené pro optimalizaci prostoru v interíéru. Vyrobeno z galvanicky pozinkované oceli.
Podrobné infoDveře | |
| Otevírání | posuvné |
| Typ | jednokřídlé |
| Orientace | levá, pravá |
| Šířka | 650 – 1050 mm |
| Výška | 1985 mm |
| Maximální tloušťka | 42 mm |
| Maximální hmotnost | 80 kg |
| Viditelné futro | ano |
| Celoskleněné dveře | ano (příslušenství lze přikoupit) |
| Dveře součástí balení | ne |
Vlastnosti | |
| Typ pouzdra | obložkové |
| Tloušťka hotové příčky | 100 – 125 mm |
| Materiál příčky | sádrokarton |
Čistý průchod | |
| Šířka čistého průchodu | 600 – 1000 mm |
| Výška čistého průchodu | 1970 mm |
| Čistý průchod | 600 – 900 × 1975 mm |
Stavební pouzdro | |
| Materiál pouzdra | ocel |
| Antikorozní ochrana | galvanické zinkování |
| Technologie výroby | clinching |
| Šířka | 1330 – 2130 mm |
| Výška | 2065 mm |
| Tloušťka | 54 – 79 mm |
| Mříž na omítání | ne |
| Vedení elektrorozvodů | nelze instalovat |
| Vypínač v rámu | lze instalovat |
Stavební otvor | |
| Šířka | 1330 – 2130 mm |
| Výška | 2065 mm |
| Překlad | - |
Parametry | |
| Původ | Vyrobeno v IT |
| Záruka | 15 let |
| Značka | Ermetika |
Stavební pouzdra Ermetika EvoKit byla vytvořena pro hladké a tiché zasouvání dveří do vytvořené kapsy. Toto pouzdro je navíc možné nastavit pro tloušťku výsledné příčky 100 nebo 125 mm. Dveře zasouvající se do zdi či sádrokartonové příčky skvěle uvolňují spoustu cenného místa v obytných prostorech.
Stavební pouzdro je vyrobeno z pevné galvanicky pozinkované oceli o tloušťce 1,2 mm, které zaručuje dlouholeté bezchybné užívání. Pevná konstrukce navíc umožňuje usadit do rámu v podstatě jakékoliv dveře od dřevěných až po celoskleněné.
Boční panely jsou vertikálně žebrovány dvojitými profily o tloušťkách 4 a 2 mm a vzdálenosti 50 mm. Pozinkovaná ocelová konstrukce s 12 vodorovnými výztužnými profily ukotvenými na bočních panelech zaručuje extrémní pevnost a odolnost vůči namáhání. Díky vodící liště je umožněna instalace doplňků a kontrola kluzného systému pro dlouhodobé a kvalitní použití.
Systém Easy Clip usnadňuje jednoduché nastavení instalovaných dveří a zároveň pomáhá pouzdru v držení těžších dveřních křídel. Vozíčky Easy Roll, částečně vyrobené z nylonu, zaručují tichý, dlouhodobý a plynulý pohyb dveří. Spodní montážní vzpěra umožňuje dokonalé vyrovnání pouzdra a zaručuje stabilitu v průběhu celé instalace.
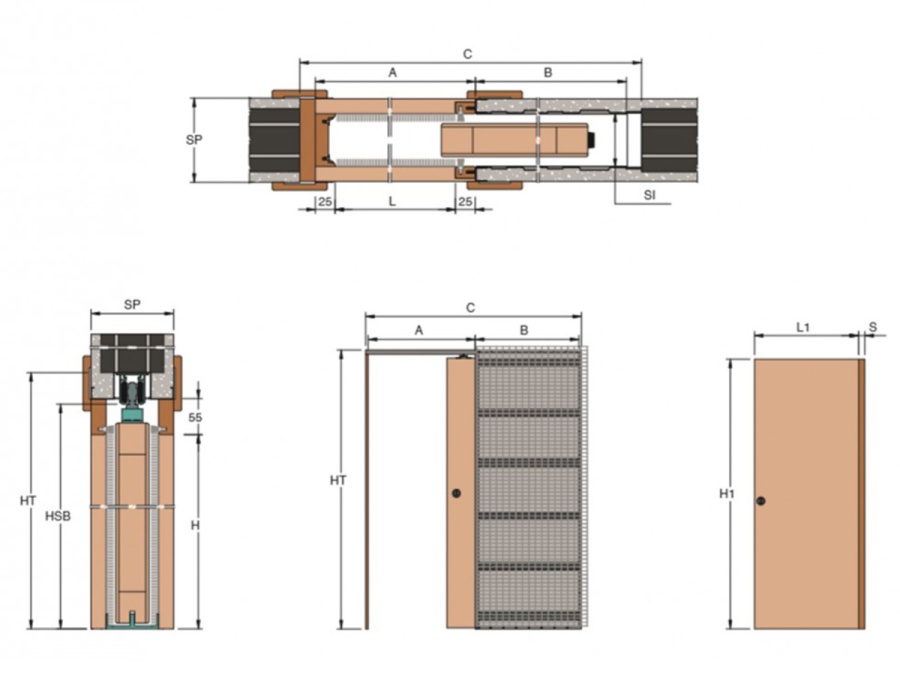
Stavební pouzdro | C x HT | 1330 x 2065 | 1530 x 2065 | 1730 x 2065 | 1930 x 2065 | 2130 x 2065 | |
|---|---|---|---|---|---|---|---|
| Čistý průchod | (š x v) | L x H | 600 x 1970 mm | 700 x 1970 mm | 800 x 1970 mm | 900 x 1970 mm | 1000 x 1970 mm |
| Dveře | (š x v) | L1 x H1 | 650 x 1985 mm | 750 x 1985 mm | 850 x 1985 mm | 950 x 1985 mm | 1050 x 1985 mm |
| Průchod bez dveří | (š) | A | 670 mm | 770 mm | 870 mm | 970 mm | 1070 mm |
| Plechová kapsa | (š) | B | 620 mm | 720 mm | 820 mm | 920 mm | 1020 mm |
| Kolejnice | (v) | HSB | 2020 mm | 2020 mm | 2020 mm | 2020 mm | 2020 mm |
| Stavební otvor | (š x v) | C x HT | 1330 x 2065 mm | 1530 x 2065 mm | 1730 x 2065 mm | 1930 x 2065 mm | 2130 x 2065 mm |
| Stavební pouzdro | (t) | S.I. | 59 - 79 mm | 59 - 79 mm | 59 - 79 mm | 59 - 79 mm | 59 - 79 mm |
| Hotová příčka | (t) | SP | 100, 125 mm | 100, 125 mm | 100, 125 mm | 100, 125 mm | 100, 125 mm |






Hledáte příslušenství k produktům ve vašem košíku?
Je vám k dispozici v této nabídce.
Ne, nejprve si vytvořte objednávku přes e-shop, jen tak zajistíme dostupnost materiálu při osobním vyzvednutí.
Samozřejmě a rádi :)
Neztrácejme spojení – můžeme si zavolat a probrat dopravu, platbu nebo třeba konkurenční nabídku. Určitě to spolu vymyslíme.
Založte si Buildex účet, my Vám dáme 100 Kč na první objednávku a aktivujeme další výhody.
My, společnost Buildex Group s.r.o., IČO 5362431 používáme soubory cookies k zajištění funkčnosti webu a s Vaším souhlasem i mj. k personalizaci obsahu našich webových stránek. Kliknutím na tlačítko „Rozumím“ souhlasíte s využívaním cookies a předáním údajů o chování na webu pro zobrazení cílené reklamy na sociálních sítích a reklamních sítích na dalších webech.
Číst dále Méně
Maximálně pohodlné prohlížení na míru. To díky sušenkám dokážeme zařídit. Košík si bude pamatovat váš nákup, bez odhlášení vám nehrozí otravné zadávání údajů a zobrazovat se vám bude jen relevantní obsah. O co se s námi podělíte je zcela ve Vaší režii, vše bude ale v maximálním bezpečí.
Nezbytná data pro správné fungování stránky, která musí být vždy povolena.
Pomáhají nám pochopit, co by vás mohlo zajímat, na čem naše stránky prohlížíte, co nám na webu nefunguje a podobně.
Umožňují zobrazovat vám vhodný obsah na základě produktů, článků a stránek, které jste u nás navštívili.
Díky nim uvidíte na reklamních místech u nás a na jiných sítích to, co by vás mohlo zajímat a nikoliv nemístné, náhodné kampaně.
Foto - Standard SDK Ermetika EvoKit SDK
Foto - Standard SDK Ermetika EvoKit SDK
Foto - Standard SDK Ermetika EvoKit SDK
Foto - Standard SDK Ermetika EvoKit SDK
Foto - Standard SDK Ermetika EvoKit SDK
Foto - Standard SDK Ermetika EvoKit SDK
Diskuze
Dobrý den , nikde se nemohu dočíst , co vše je součástí balení stavebního pouzdra Ermetika EvoKit SDK Děkuji za odpověd Bradáč
Dobrý den,
součástí je vše co je potřebné k montáži samotného pouzdra a také k montáží do otvoru včetně úchytů a pojezdů atd…
Dobrý den, chtěl bych se zeptat, jestli pouzdro zvládne člověk nainstalovat sám nebo je potřeba odborníka, koukal jsem na nějaká videa na youtube a nevypadá to až tak složitě. Děkuji za doporučení.
Dobrý den,
nikdy není na škodu mít po ruce zkušeného odborníka, ale stavební pouzdro by měl zručný domácí kutil zvládnout osadit. Jak jsem zmínil, na Youtube můžete najít instalační videa přímo od výrobce.
Hodně zdaru a hezký den.