Exkluzivní černá vpusť s redukcí a průběžným napojením pro využití i do exteriéru. Obsahuje dvojitý protizápachový systém, vyrobená je z PP, PS a nerezové oceli. Volitelný design nerezové mřížky s polyesterovou termosetickou barvou, možnost příruby.
Zobraziť celý popis
Inštalácia |
|
| Kotvenie | betonáž |
|---|---|
| Pripojenie spodné | nie |
| Pripojenie bočné | D50 / D75 |
Parametre |
|
| Model | PVP 50/75 (průběžná) |
| Vyrobené | Česká republika |
| Záruka | 2 roky |
| Značka | Chudob |
| Určenie | interiér, exteriér |
Zaťaženie |
|
| Trieda zaťaženia | K3 |
| Nosnosť | 0,3 t |
| Norma | EN 1253 |
Rošt |
|
| Otvory | áno |
| Uchytenie | skrutkové |
| Antikorózna ochrana | nerez |
| Materiál roštu | oceľ |
| Farba | čierna |
| Tvar | hranatý |
| Rozmery | 125 × 125 mm |
Vpusť |
|
| Materiál vpustu | polypropylén |
| Farba | čierna |
| Tvar | kruhový |
| Výška | 105 – 155 mm |
Perametre |
|
| Pôvod | Vyrobené v ČR |
| Záruka | 2 roky |
| Značka | Chuděj |
| Parametry produktu: | |
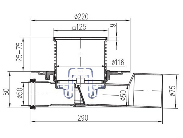
Chuděj PVP 50/75 (průběžná) je boční podlahová vpusť s redukcí určená pro soustavu potrubního vedení uvnitř budovy odvádějící odpadní vodu přes kanalizační přípojku z nemovitosti do veřejné kanalizace, případně přímo do domovní čistírny odpadních vod, septiků. Třída zatížení K3, tepelná odolnost do 90 °C, zkoušeno dle normy EN 1253. Potrubí lze zabudovat do D 50 z obou stran a z jedné do D 75.
Volitelný výběr mřížky umožňuje volbu ze čtyř různých provedení designu. Černá mřížka je vyrobena z nerezové oceli DIN 1.4301 o síle 1,5 mm opatřené polyesterovou termosetickou barvou, která zaručuje odolnost vůči korozi, okolnímu namáhání a rozdílným teplotám vody. Exkluzivní řada s černou mřížkou dodává interiéru luxusní vzhled.
Obsahuje suchou klapku (64 - 80 l / min) a vodní hladinu (29 - 36 l / min), které zabraňují zpětnému šíření zápachu z kanalizace a také nehrozí zamrznutí vody uvnitř vpusti. Tělo vpusti je vyrobeno z polypropylenu a umožňuje volbu o vybavení nerezovou přírubu s 5 ks šroubů pro snadnou montáž hydroizolačních materiálů. Výšku vpusti lze uživatelsky zkrátit pomocí pilky v rozmezí 105– 155 mm.
Volitelná mřížka 116 x 116 mm pro podlahové vpusti Chuděj z nerez. oceli DIN 1.4301 o síle 1,5 mm opatřené polyesterovou termosetickou barvou. Pro nástavec 125 × 125 mm
Plastové sítko na zachytávání nečistot podlahových vpustí Chuděj s nástavcem 125 x 125 a 150 x 150 mm.
Protizápachová vodní hladina zabraňuje zpětnému šíření zápachu z kanalizace uvnitř podlahových vpustí Chuděj PVP a PVBU 50 / 75.
Protizápachová suchá klapka zabraňuje zpětnému šíření zápachu z kanalizace uvnitř podlahových vpustí Chuděj.
Nerezová příruba a 5 ks šroubů pro snadnou montáž hydroizolačních materiálů podlahových vpustí Chuděj.
Plastový límec včetně těsnícího kroužku, který slouží pro snadnou montáž hydroizolačních materiálů. Rozměry činí 220 x 220 mm, průměr připojení D 115.
Zajištění límce pro izolaci, které se umisťuje mezi límec a korpus vpusti.
Těsnící o-kroužek pro sprchové žlaby z plastu a podlahové vpusti Chuděj. Rozměry činí 107 x 3,5 mm.













Hľadáte príslušenstvo k tovaru vo vašom košíku?
Je vám k dispozícii v tejto ponuke.
Nie, najprv si vytvorte objednávku cez e-shop, len tak zaistíme dostupnosť materiálu pri osobnom vyzdvihnutí.
Samozrejme a radi :)
Nestrácajme spojenie – môžeme si zavolať a prebrať dopravu, platbu alebo napríklad konkurenčnú ponuku. Určite to spolu vymyslíme.
Založte si Buildex účet, my vám dáme 4 € na prvú objednávku a aktivujeme ďalšie výhody.
My, spoločnosť Buildex Group s.r.o, IČO 5362431, používame súbory cookies na zaistenie funkčnosti webu a s vaším súhlasom o. i. aj na personalizáciu obsahu našich webových stránok. Kliknutím na tlačidlo „Rozumiem“ súhlasíte s využívaním cookies a predaním údajov o správaní na webe na zobrazenie cielenej reklamy na sociálnych sieťach a reklamných sieťach na ďalších weboch.
Čítať ďalej Menej
Maximálne pohodlné prezeranie na mieru. To vďaka sušienkam dokážeme zariadiť. Košík si bude pamätať váš nákup, bez odhlásenia vám nehrozí otravné zadávanie údajov a zobrazovať sa vám bude iba relevantný obsah. O čo sa s nami podelíte je úplne vo Vašej réžii, všetko bude ale v maximálnom bezpečí.
Nevyhnutné dáta pre správne fungovanie stránky, ktoré musia byť vždy povolené.
Pomáhajú nám pochopiť, čo by vás mohlo zaujímať, na čom naše stránky prezeráte, čo nám na webe nefunguje a podobne.
Umožňujú zobrazovať vám vhodný obsah na základe produktov, článkov a stránok, ktoré ste u nás navštívili.
Vďaka nim uvidíte na reklamných miestach u nás a na iných sieťach to, čo by vás mohlo zaujímať a nie nemiestne, náhodné kampane.
Foto - Chuděj PVP 50/75 (průběžná)
Foto - Chuděj PVP 50/75 (průběžná)
Foto - Chuděj PVP 50/75 (průběžná)
Foto - Chuděj PVP 50/75 (průběžná)
Foto - Chuděj PVP 50/75 (průběžná)
Foto - Chuděj PVP 50/75 (průběžná)
Foto - Chuděj PVP 50/75 (průběžná)
Foto - Chuděj PVP 50/75 (průběžná)
Foto - Chuděj PVP 50/75 (průběžná)
Foto - Chuděj PVP 50/75 (průběžná)
Foto - Chuděj PVP 50/75 (průběžná)
Foto - Chuděj PVP 50/75 (průběžná)
Foto - Chuděj PVP 50/75 (průběžná)
Diskusia
Pridať otázkuSkryť