Stylová venkovní sauna z 70mm dřevěných panelů, která nabízí moderní design s prosklenými prvky a výbornou izolaci. Díky kompaktním rozměrům a snadné montáži je ideální volbou pro relaxaci na zahradě či terase.
Podrobné infoVlastnosti | |
| Materál | smrkové dřevo |
| Nátěr | neošetřené |
| Zpracování | sušení |
| Povrchová úprava | hoblované |
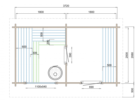
| Šířka | 208 cm |
| Délka | 372 cm |
| Výška v hřebeni | 245 cm |
| Základna | 376 × 209 cm |
| Typ skla | tvrzené izolační sklo |
| Typ střechy | pultová střecha |
| Tloušťka stěn | 70 mm |
| Typ dveří | jednokřídlé dveře |
| Tloušťka skla | 4–6–4 mm |
| Střešní krytina | ne |
| Sklon střechy | 7° |
| Počet místností | 2 |
| Počet dveří | 1 |
| Počet oken | 2 |
Perametre | |
| Záruka | 24 mesiacov |
| Značka | Tuindeco |
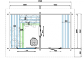
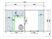
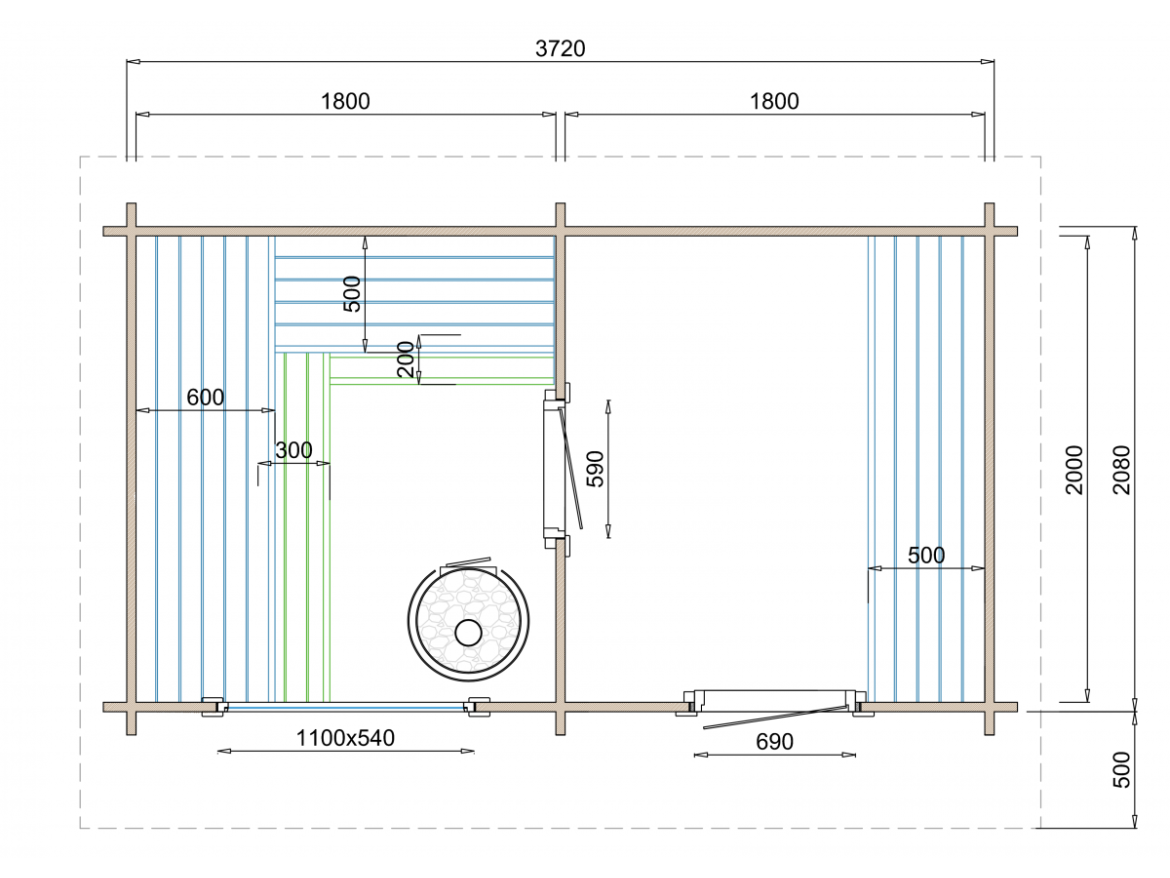
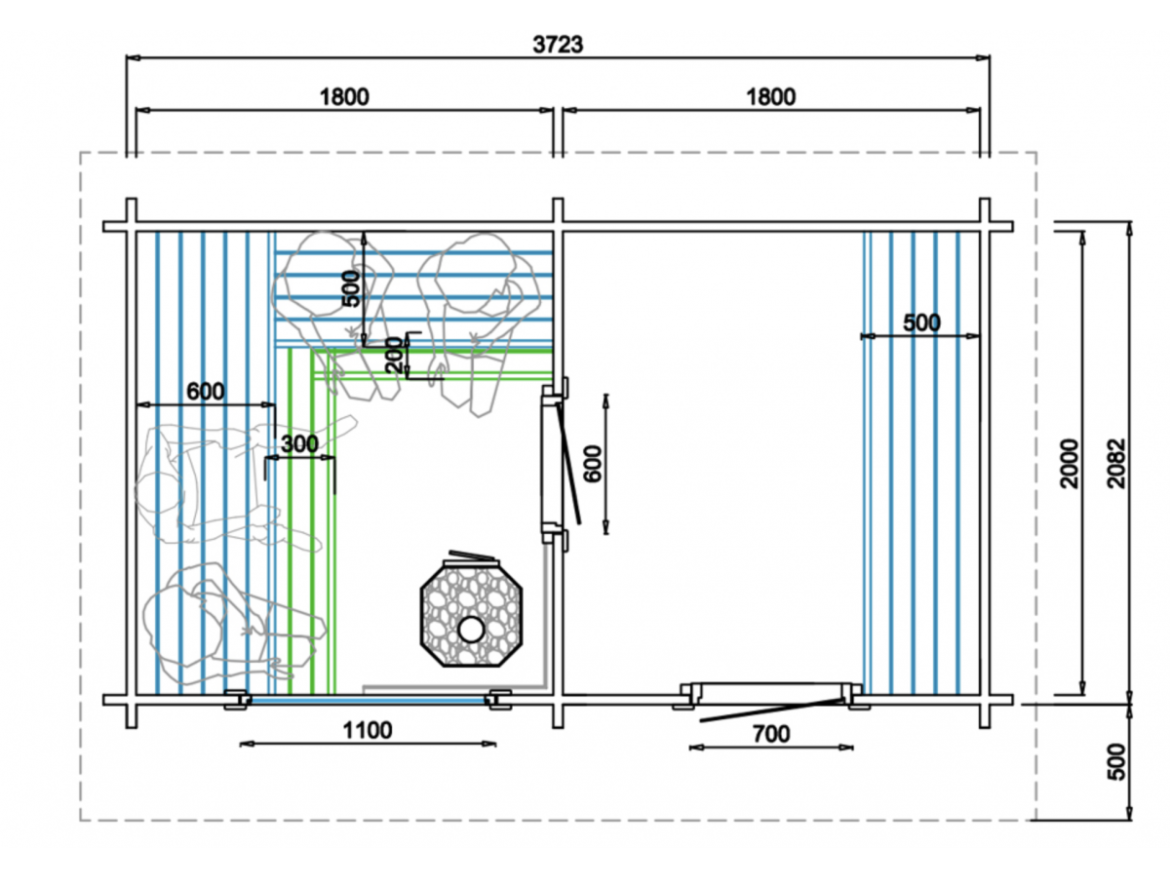
Jakobstad je moderní venkovní sauna vyrobená z 70mm silných dřevěných panelů, které zajišťují výbornou izolaci a dlouhou životnost. Konstrukce zahrnuje elegantní prosklené dveře a čelní stěnu z bezpečnostního skla, což přináší dostatek přirozeného světla a kontakt s okolní přírodou.
Podlahu tvoří pevný základ s možností instalace podlahového žlabu pro efektivní odvod vody. Díky kompaktním rozměrům a promyšlenému designu je sauna ideální pro umístění do zahrad nebo na terasy. Produkt je dodáván jako stavebnice s podrobným návodem pro snadnou montáž.
| Vybrané | VybranéP015063 |
|---|---|
| attitm_tdi_v01_included | floor gutter |
| attitm_tdi_v01_glass | tempered insulating glass |
| attitm_tdi_v01_log_cabin_treatment | untreated |
| attitm_tdi_v01_type_roof | pent roof |
| attitm_tdi_v01_not_included | sauna heater |
| attitm_tdi_v01_glass_thickness | 4-6-4mm |
| attitm_tdi_v01_durability_class | durability class 4 |
| attitm_tdi_v01_material | wood |
| attitm_tdi_v01_assortment_type | Primary Assortment |
| attitm_tdi_v02_finishing | planed |
| attitm_tdi_v01_type_door | single door |
| attitm_tdi_v01_product_life_cycle | Discontinued |
| attitm_tdi_v01_erp_pricing_group | Wellness |
| attitm_tdi_v01_drying | dried |
| attitm_tdi_v01_material_detailed | spruce |
| attitm_tdi_v01_treatment | untreated |
| attitm_tdi_v01_included_roof_covering | Optional |
| attitm_tdi_v01_width | 208 cm |
| attitm_tdi_v01_length | 372 cm |
| attitm_tdi_v01_depth_roof | 310 cm |
| attitm_tdi_v01_foundation | 376 x 209 cm |
| attitm_tdi_v01_roof_pitch | 7 degree |
| attitm_tdi_v01_width_roof | 470 cm |
| attitm_tdi_v01_number_door | 1 |
| attitm_tdi_v01_number_room | 2 |
| attitm_tdi_v01_height_ridge | 245 cm |
| attitm_tdi_v01_wall_thickness | 70 mm |
| attitm_tdi_v01_stock_threshold | 15 |
| attitm_tdi_v01_height_rear_wall | 211 cm |
| attitm_tdi_v01_suitable_roof_tile | 0 |
| attitm_tdi_v01_buildinstructions_1 | af57d854599f56b8ac985290e31336fa |
| attitm_tdi_v01_number_opening_window | 1 |




Hľadáte príslušenstvo k tovaru vo vašom košíku?
Je vám k dispozícii v tejto ponuke.
Nie, najprv si vytvorte objednávku cez e-shop, len tak zaistíme dostupnosť materiálu pri osobnom vyzdvihnutí.
Samozrejme a radi :)
Založte si Buildex účet, my Vám dáme 4 € na prvú objednávku a aktivujeme ďalšie výhody.
My, spoločnosť Buildex Group s.r.o, IČO 5362431, používame súbory cookies na zaistenie funkčnosti webu a s vaším súhlasom o. i. aj na personalizáciu obsahu našich webových stránok. Kliknutím na tlačidlo „Rozumiem“ súhlasíte s využívaním cookies a predaním údajov o správaní na webe na zobrazenie cielenej reklamy na sociálnych sieťach a reklamných sieťach na ďalších weboch.
Čítať ďalej Menej
Maximálne pohodlné prezeranie na mieru. To vďaka sušienkam dokážeme zariadiť. Košík si bude pamätať váš nákup, bez odhlásenia vám nehrozí otravné zadávanie údajov a zobrazovať sa vám bude iba relevantný obsah. O čo sa s nami podelíte je úplne vo Vašej réžii, všetko bude ale v maximálnom bezpečí.
Nevyhnutné dáta pre správne fungovanie stránky, ktoré musia byť vždy povolené.
Pomáhajú nám pochopiť, čo by vás mohlo zaujímať, na čom naše stránky prezeráte, čo nám na webe nefunguje a podobne.
Umožňujú zobrazovať vám vhodný obsah na základe produktov, článkov a stránok, ktoré ste u nás navštívili.
Vďaka nim uvidíte na reklamných miestach u nás a na iných sieťach to, čo by vás mohlo zaujímať a nie nemiestne, náhodné kampane.
Foto - Sauna Tuindeco Jakobstad 70
Foto - Sauna Tuindeco Jakobstad 70
Foto - Sauna Tuindeco Jakobstad 70
Foto - Sauna Tuindeco Jakobstad 70
Diskusia
Pridať otázkuSkryť