Nerezový žlab s patentovaným otočným sifonem a hydroizolační membránovou fólií. Lisováno jako jeden kus bez svárů, nastavitelné podpěry, montážní ALU lišta s možností nalepení dlažby, skla nebo nerezové lišty bez limitu výšky obkladu.
Zobrazit celý popis
Instalace |
|
| Kotvení | betonáž |
|---|---|
| Připojení spodní | ne |
| Připojení boční | D40 |
Zatížení |
|
| Třída zatížení | K3 |
| Nosnost | 0,3 t |
| Norma | EN 1253 |
Žlab |
|
| Materiál žlabu | ocel |
| Barva | šedá |
| Tvar | hranatý |
| Délka | 1000 – 1200 mm |
| Šířka | 330 mm |
| Povrchová úprava | nerez |
Rošt |
|
| Otvory | ano |
| Uchycení | šroubové |
| Antikorozní ochrana | legovací prvky |
| Materiál roštu | hliník |
| Barva | stříbrná |
| Tvar | hranatý |
Parametry |
|
| Původ | Vyrobeno v ČR |
| Záruka | 2 roky |
| Značka | Chuděj |
| Parametry produktu: | |
Chuděj Aquarius LZB 50 360° (s izolací) je novou dimenzí moderní koupelny, která nyní dává neomezené možnosti dokonalé harmonii designu a funkčnosti. Díky špičkové moderní technologii se stane v jakékoliv koupelně perfektní ochranou před nežádoucími průsaky vody. Nová technologie usnadňuje a zároveň posunuje hranici možnosti snadnějšího pracovního procesu výroby a montáže.
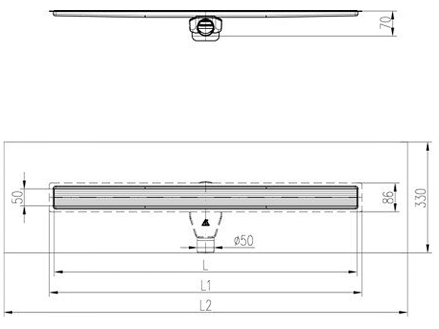
Těleso žlabu je vyrobeno z nerezové oceli DIN 1.4401 AISI 316 a je lisováno jako jeden kus bez svárů. Hydroizolační membránová fólie je hermeticky spojena již ve výrobě. Stavební výška činí 70 mm. Unikátní patentovaný odtok D 50 je tvořen otočným plastovým sifonem s integrovanou silikonovou membránou a vodní hladinou, který usnadňuje montáž na potrubí. Zaručuje průtok 46 - 50 l / min dle normy EN 1253.
Vtokové ALU lišty jsou vyrobeny z hliníku a jsou součástí žlabu. Na montážní lištu je možné nalepit obklad jako je dlažba, sklo nebo nerezová lišta bez limitu výšky obkladu. Konfigurovatelné stavěcí podložky z plastu lze nastavit na požadovanou výšku a tím dokonale dosáhnout maximální rovnosti stávajícího obkladu s obkladem nalepeným na montážní ALU lištu. Délku vtokové lišty lze zvolit 700, 800 nebo 900 mm.
Balení obsahuje podložky žlabu z polystyrénu a výškově stavitelné nožičky z nerezové oceli s možností rozsahu 55 - 90 mm pro bezchybnou montáž. Nerezový klíč pro vyjmutí mřížky, hmoždinky, šrouby a montážní návod součástí.
| Vybráno | Vybráno700 mm, pro obklad | Vybráno700 mm, nerez | Vybráno800 mm, pro obklad | Vybráno800 mm, nerez | Vybráno900 mm, pro obklad | Vybráno900 mm, nerez |
|---|---|---|---|---|---|---|
| Délka | 1000 mm | 1000 mm | 1100 mm | 1100 mm | 1200 mm | 1200 mm |
| Délka mříže | 735 mm | 735 mm | 835 mm | 835 mm | 935 mm | 935 mm |
| Světlá délka | 700 mm | 700 mm | 800 mm | 800 mm | 900 mm | 900 mm |
| Šířka | 330 mm | 330 mm | 330 mm | 330 mm | 330 mm | 330 mm |
| Šířka mříže | 86 mm | 86 mm | 86 mm | 86 mm | 86 mm | 86 mm |
| Světlá šířka | 50 mm | 50 mm | 50 mm | 50 mm | 50 mm | 50 mm |
| Výška | 70 mm | 70 mm | 70 mm | 70 mm | 70 mm | 70 mm |
| Hmotnost | 1,78 kg | 2,19 kg | 1,94 kg | 2,40 kg | 2,10 kg | 2,58 kg |








Hledáte příslušenství k produktům ve vašem košíku?
Je vám k dispozici v této nabídce.
Foto - Žlab Chuděj Aquarius LZB 50 360° (s izolací)
Foto - Žlab Chuděj Aquarius LZB 50 360° (s izolací)
Foto - Žlab Chuděj Aquarius LZB 50 360° (s izolací)
Foto - Žlab Chuděj Aquarius LZB 50 360° (s izolací)
Foto - Žlab Chuděj Aquarius LZB 50 360° (s izolací)
Foto - Žlab Chuděj Aquarius LZB 50 360° (s izolací)
Foto - Žlab Chuděj Aquarius LZB 50 360° (s izolací)
Foto - Žlab Chuděj Aquarius LZB 50 360° (s izolací)
Diskuze
Položit otázkuSkrýt